Charmante maison mitoyenne dans le quartier recherché de Carvajal, à seulement 5 minutes de la plage et 10 minutes de la gare, des restaurants et des commerces. Située dans une résidence calme avec piscine et jardins.
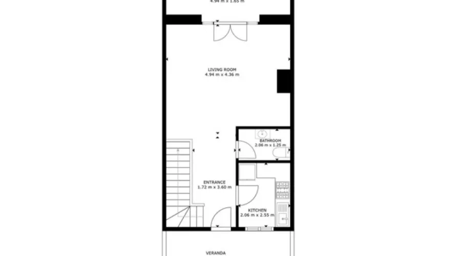
La maison comprend : un salon lumineux avec vue partielle sur la mer, cuisine équipée, terrasse et WC invités. En bas : grande chambre principale avec salle de bain en suite et terrasse, deuxième chambre et une autre salle de bain. Sur le toit : terrasse privée avec vue sur la montagne et débarras.
Atouts : parking privé, grandes baies vitrées à double vitrage, résidence bien entretenue. Idéal pour profiter du style de vie de la Costa del Sol, avec plage et transports accessibles à pied.
Townhouse de 2 chambres à Benalmadena, Spain No. 31141
375 000 €
3 606 €/m²
2
Chambres
3
Salles de bain
104
Surface habitable, m²
sur la carte
Townhouse Benalmadena
Caractéristiques
- Proche de la plage
- Proche des centres commerciaux
- Proche des écoles
- Près du terrain de golf
- Proche de la rivière ou de la promenade
- Première ligne de mer
Caractéristiques de
Emplacement
- Proche de la plage
- Proche des centres commerciaux
- Proche des écoles
- Près du terrain de golf
- Proche de la rivière ou de la promenade
- Première ligne de mer
- Vue sur mer
- Vue panoramique
Caractéristiques
- Terrasse
- Cuisine entièrement équipée
