Nous sommes fiers de vous présenter la Villa Dunas, une villa contemporaine de construction neuve située dans une rue résidentielle calme en impasse à Monte Biarritz, à la frontière de Nueva Atalaya, dans l’est d’Estepona. Conçue pour une vie familiale moderne, cette propriété offre intimité, finitions de qualité et un emplacement privilégié à seulement quelques minutes de la côte.
La villa fait partie d’un développement exclusif de seulement trois maisons de luxe, parfaitement positionnées pour ceux qui recherchent un environnement paisible proche de la nature, tout en étant à courte distance en voiture de Marbella, Benahavís, San Pedro, Puerto Banús et Estepona.
Avec toutes les commodités essentielles à proximité — terrains de golf, écoles internationales, centres commerciaux, restaurants et magnifiques plages de sable — la Villa Dunas représente une opportunité rare d’acquérir une maison moderne nécessitant peu d’entretien dans l’un des quartiers résidentiels les plus connectés de la Costa del Sol.
Résumé de la propriété :
- 4 chambres spacieuses avec salle de bains privative
- 5 salles de bains, y compris des toilettes invités
- Piscine privée et jardin paysager
- Solarium sur le toit avec préinstallation pour jacuzzi et vue partielle sur la mer
- Espace de vie, salle à manger et cuisine décloisonnés avec accès direct aux terrasses
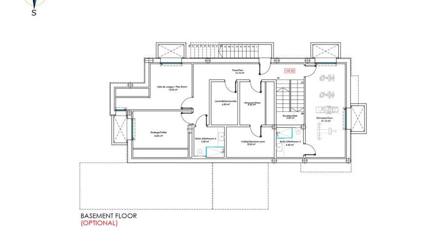
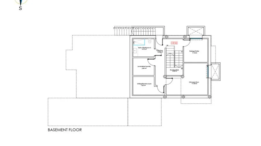
- Sous-sol avec chambre d’amis, salle de sport, salle de cinéma et espace de rangement
- Carport pour 2 véhicules
- Orientation sud-est avec lumière naturelle toute la journée
Qualité et confort :
Construite selon des spécifications élevées, la villa présente des matériaux et des finitions de première qualité signés Porcelanosa, un leader du design d’intérieur espagnol. La cuisine personnalisée est équipée d’appareils intégrés Bosch, réputés pour leur performance et leur fonctionnalité moderne.
Pour un confort toute l’année, la villa est équipée d’un chauffage au sol au rez-de-chaussée et au premier étage — idéal pour créer une ambiance chaleureuse et luxueuse, même pendant les mois les plus frais.
Les portes vitrées, les terrasses non couvertes et les espaces intérieurs bien conçus permettent une transition harmonieuse entre l’intérieur et l’extérieur, parfaits pour recevoir ou se détendre dans le climat méditerranéen.
Disposition :
Rez-de-chaussée :
Espace de vie décloisonné, suite d’invités avec terrasse privée, toilettes invités, débarras, accès direct à la piscine et au jardin.
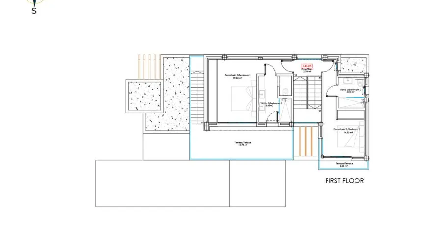
Premier étage :
Chambre principale avec salle de bains attenante et grande terrasse ; autre suite d’invités avec salle de bains privée et balcon.
Toit-terrasse :
Grand solarium avec préinstallation pour jacuzzi ; vue partielle sur la mer.
Sous-sol :
Chambre d’amis, espace salle de sport et cinéma, débarras, fenêtre avec lumière naturelle.
Achèvement estimé : avril 2025
La Villa Dunas est une propriété idéale pour les familles, les acheteurs internationaux ou les investisseurs à la recherche d’une villa neuve de luxe dans l’un des quartiers les plus recherchés et les mieux connectés de la Costa del Sol.
Contactez-nous dès aujourd’hui pour plus d’informations ou pour organiser une visite privée.
Villa de 4 chambres à Estepona, Spain No. 30988
1 950 000 €
4 734 €/m²
4
Chambres
4
Salles de bain
412
Surface habitable, m²
sur la carte
Villa Estepona
Caractéristiques
- Proche de la plage
- Proche des centres commerciaux
- Proche des écoles
- Banlieue
- Vue sur mer
- Vue sur piscine
Caractéristiques de
Emplacement
- Proche de la plage
- Proche des centres commerciaux
- Proche des écoles
- Banlieue
- Vue sur mer
- Vue sur piscine
- Vue sur parc/jardin
- Orientation ouest
Caractéristiques
- Terrasse
